Quick Search:
Property ID:
Sale
Features
Description
RAY COOKE AUCTIONEERS are delighted to present this stunning 4 bed mid-terrace property to the market, ideally located on the ever-popular Deanstown Park estate in Finglas D11. This property offers a fantastic opportunity for first-time buyers and upsizers seeking to set down roots in a mature and well-established home in Finglas.
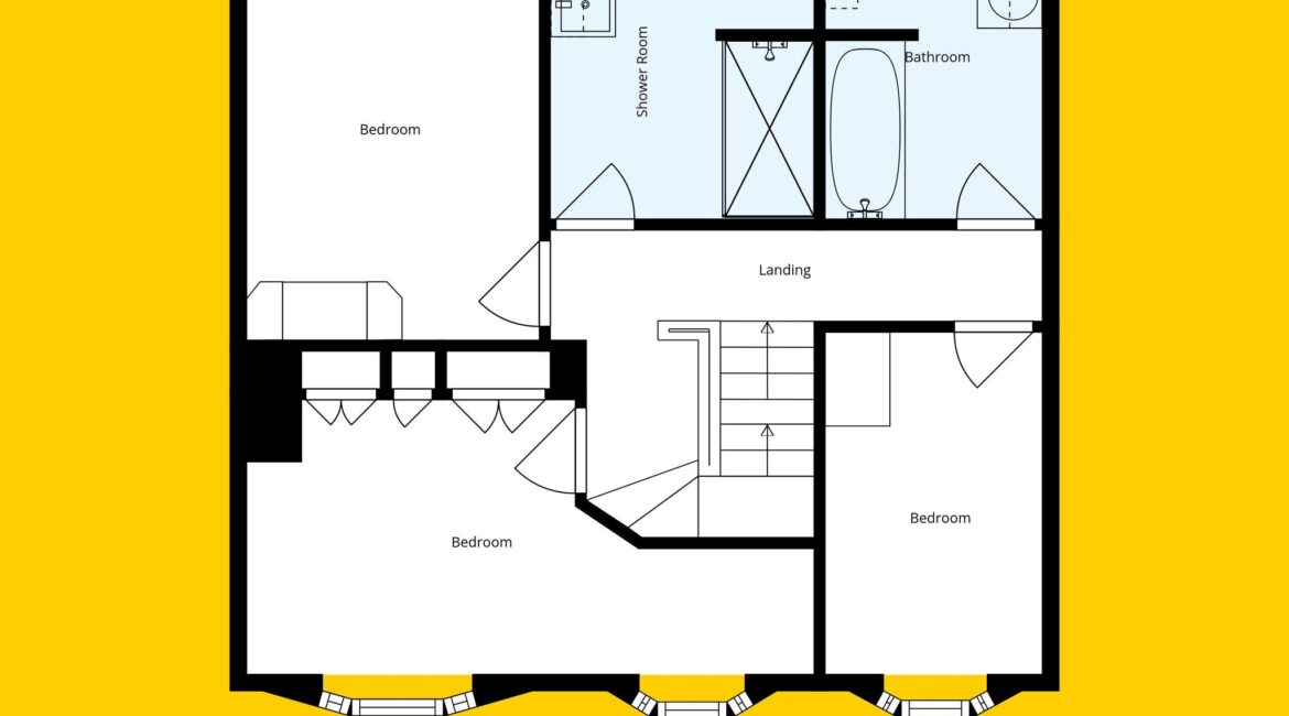
Internal living accommodation of c. 114 sqm consists of an entrance hallway, downstairs bedroom, living room and kitchen area that leads out to a bright sunroom. The rear of the property features a large low maintenance rear garden with plenty of scope for a variety of functions. Upstairs boasts a generous landing, one single bedroom, two spacious double bedrooms both filled with natural light and offering generous storage options along with a 2 family bathrooms. The attic has also been converted and currently used for storage.
The property benefits from generous living space, large front and rear garden along and overlooking a lovely green area. Number 23 also comes to market in turnkey condition, with no onward chain. This home is sure to appeal to a variety of buyers due to its convenient location and well-proportioned living space.
Deanstown Park is a mature and well-established estate in Finglas, with every local amenity on your doorstep. The Charlestown Shopping Centre, IKEA, Finglas Village and a variety of schools and bus routes are all within easy reach. Early Viewing is highly advised.
Key Features Include:
• 4 bed/2 bath end of terrace
• C. 114 sqm
• BER C2
• Built in 1987
• Mid-terrace position, extended and renovated
• Extra-large rear garden
• No onward chain
• Two large double bedrooms and two large bathrooms
• Ideally situated overlooking a green area
• Mature residential setting with excellent transport links nearby
• Within walking distance of Finglas Village, schools, parks, and local shops
• Easy access to M50, M1, and Dublin City Centre
Location

Phone:
Connect with us:
Phone:






































































